Quadrilocale in vendita

Roma - Rione Monti
€ 749.000
Prezzo aggiornato
4 locali 4 locali
93 Mq 93 Mq
2 bagni 2 bagni

Quadrilocale in vendita

Roma - Rione Monti

Descrizione annuncio

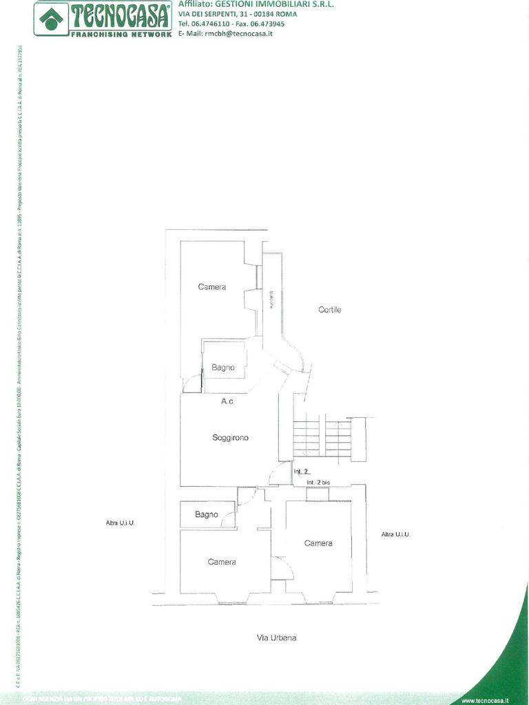
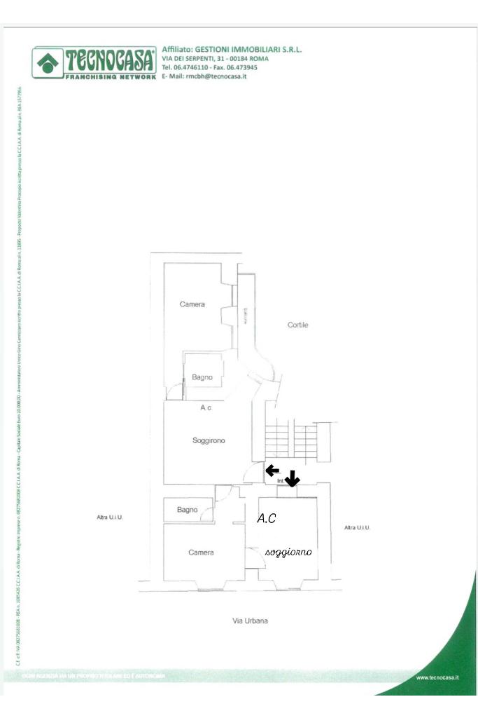
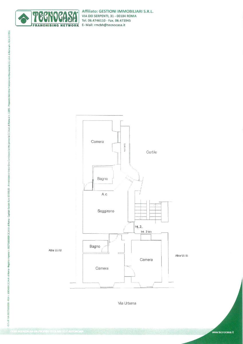
Appartamento con Doppio Ingresso.

In uno dei contesti più ricercati della zona, all’interno di uno stabile d’epoca, proponiamo in esclusiva un immobile perfettamente ristrutturato dotato di doppio ingresso e attualmente suddiviso in due bilocali perfettamente speculari, ideale come soluzione abitativa con rendita, esclusivamente abitazione o investimento.

Entrambe le unità si compongono di soggiorno con angolo cottura, camera matrimoniale e bagno, e si distinguono per la loro cura dei dettagli. Il primo bilocale vanta un affaccio esterno su Via Urbana. Il secondo è impreziosito da un delizioso balconcino con vista sulla silenziosa corte condominiale interna.

La versatilità degli spazi, la doppia esposizione e la possibilità di personalizzare o ricongiungere facilmente i due ambienti rendono la proprietà un’opportunità unica nel suo genere. Soluzione esclusiva per chi desidera un immobile elegante, funzionale e dall’alto potenziale in uno dei quartieri più apprezzati della città.

Da oltre vent'anni nell'immobiliare del Rione Monti, Contattaci per fissare il tuo appuntamento.

Mostra tutto

Nelle vicinanze

Trasporto pubblico Trasporto pubblico
Cavour
Cavour
430 m
Repubblica
Repubblica
500 m
stazione di Roma Termini
stazione di Roma Termini
600 m
Termini Laziali
Termini Laziali
900 m
Termini
Termini
420 m
Ricariche auto elettriche Ricariche auto elettriche
Eneldrive Via Torino
550 m
Roma Barberini 43 | EnelX
790 m
Roma Barberini 29 | EnelX
790 m
Roma Barberini 19 | EnelX
800 m
Roma Barberini 15 | EnelX
800 m
Scuole Scuole
Scuola Alfredo Baccarini
290 m
Pontificio Seminario Lombardo
320 m
Accademia Alfonsiana
500 m
Dipartimento di ingegneria dell'Informazione, Elettronica e Telecomunicazioni
550 m
Dipartimento di Ingegneria dell'Informazione, Elettronica e Telecmunicazioni
550 m
Farmacia Farmacia
Pharmacia Sanitaria
140 m
Farmacia Viminale
170 m
Farmacia
310 m
Farmacia Piram
360 m
Pulker Farma
380 m
Ospedali Ospedali
Azienda Ospedaliera San Giovanni - Addolorata (Presidio Santa Maria)
1,3 Km
Ospedale Militare Celio
1,3 Km
Azienda Ospedaliera San Giovanni-Addolorata (Presidio S.Giovanni)
1,5 Km
Policlinico militare di Roma "Celio"
1,5 Km
Azienda Ospedaliera San Giovanni Addolorata
1,5 Km
Supermercati Supermercati
Pam Local
90 m
Carrefour Express
200 m
Coop
230 m
Tuodì
240 m
Simply market
320 m
Negozi Negozi
Carmelo Salvatore Scionti
50 m
Calzature Giacomo Santini
110 m
Minimarket
130 m
non solo Alimentari
140 m
Aaron
190 m
Bar Bar
Black Market
150 m
Il Palchetto
210 m
Bar
210 m
Blackmarket Hall
260 m
Snack bar peter bar
260 m
Ristoranti Ristoranti
L'angolo di Napoli
80 m
Ristorente Pizzeria L'esquilino Bar
80 m
Starbaps Roma
110 m
La Mela D'Oro
110 m
la mela de oro
120 m
Mostra tutto

Caratteristiche

Rif.:
61143053
Piano:
1 con ascensore (Piano basso)
Balconi:
1
Camere da letto:
2
Arredamento:
Completo
Condizionamento:
Autonomo
Mostra tutto
Prezzo Prezzo
€ 749.000
Rata mutuo Rata mutuo
€ 3.573 / mese
Spese annue Spese annue
€ 1.000
Proponi il tuo prezzoProponi il tuo prezzo

Altre caratteristiche

Classe Energetica

G
G
G
G
G
G
G
G
G
EP globale non rinnovabile:
0.00 kW h/m² anno
EP globale rinnovabile:
0.00 kW h/m² anno
EP invernale del fabbricato:
EP estiva del fabbricato:
Anno di costruzione:
1700
Riscaldamento:
Autonomo
Tipo impianto:
A radiatori
Tipo alimentazione:
Altro

Prezzo ridotto di €1 (4%%)

Ti interessa visionare l'immobile?

Fissa un appuntamento  Fissa un appuntamento

Richiedi informazioni

Clicca su Leggi per aprire l'informativa
* Questi campi sono obbligatori

Calcola il tuo mutuo

Semplice e senza impegno
Anticipo

( % )
Mutuo

( % )

pochi semplici passi

inserisci i tuoi dati
Questionario completato
Grazie per aver richiesto un appuntamento senza impegno con un nostro Consulente del Credito e Assicurativo.

Hai inserito correttamente tutti i dati necessari e a breve riceverai una e-mail con un link da convalidare per inviare i tuoi dati.
Affiliato
Gestioni Immobiliari Srl
Via Dei Serpenti, 31 00184 Roma (RM)

Il nostro staff


  • Gino Cannizzaro
    Affiliato

  • Lionello Bonanno
    Collaboratore

  • Eleonora Fusco
    Coordinatrice
Via Dei Serpenti, 31 00184 Roma (RM)
Zona: Centro Storico-Monti-Cavour-Fori Imperiali
Mostra su mappa
Orari: dal lunedì al venerdì 09.00 - 13.00 15.00 - 19.30; sabato 09.00 - 13.00; domenica chiuso.
Affiliato
Gestioni Immobiliari Srl
Via Dei Serpenti, 31 00184 Roma (RM)

2026 Tecnocasa Franchising S.p.A. - P. IVA 08365160152 - Via Monte Bianco 60/A 20089 Rozzano (MI). Ogni agenzia ha un proprio titolare ed è autonoma. Privacy policy | Policy utilizzo | Cookie policy